Phone:
+(373) 79 765 575
Email:
contact@structuraldesign.md
English
Select language
Română
English
Русский
Home
Services
Main services
Architecture and Design Services
Structural analysis
BIM Design (Building Information Modeling
Reconstruction, Renovation & Modernization of Buildings
Additional services
Find out about our services
All services
All services
Portfolio
Jobs
Contacts
Română
English
Русский
Get consultation
Home
Portfolio
Client:
Nicons S.R.L.
Project Date:
11/2017
Category:
Visit Client Website
Project Description
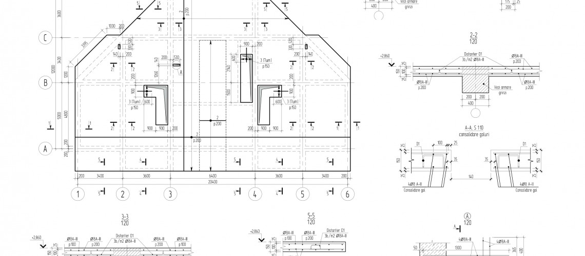
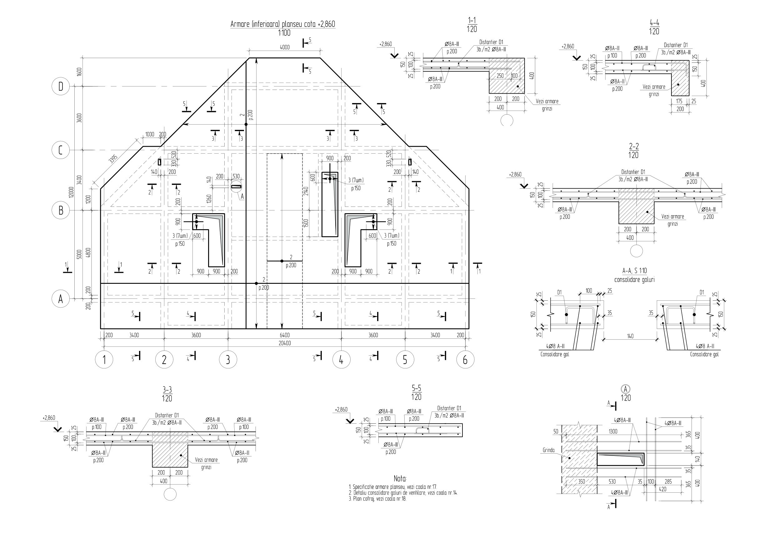
Structural calculation